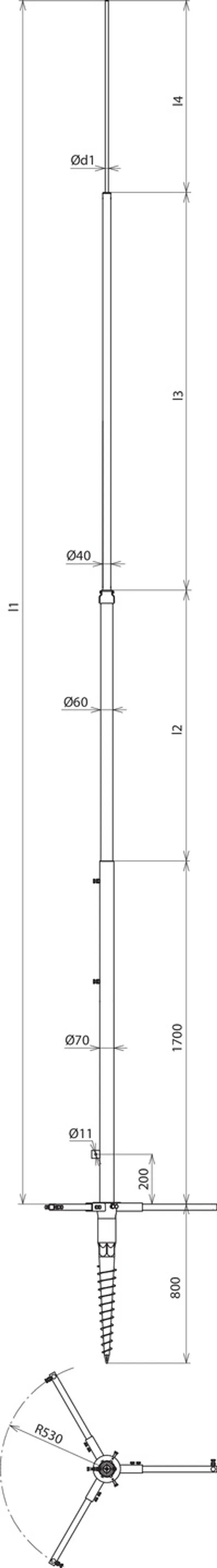
Telescopic Lightning Protection Mast with Screw Foundation

Air-termination mast for protecting special facilities such as biogas plants and free field PV systems against direct lightning strikes.
The masts are erected in a screw foundation.
No digging or foundation work necessary.
The screw foundation is screwed into the natural ground and fixed in place by three earth rods Ø20 mm, length 1500 mm (Part No. 620 151). These must be ordered separately.

The air-termination masts are designed according to Eurocode 1 (DIN EN 1991-1-4 + DIN EN 1991-1-4/NA).
These calculations are based on a natural ground pressure of 0.02 kN/cm2 (e.g. loamy, sandy, gravelly soil of medium density).

Components:
– Air-termination mast, St/tZn and Al, tapered Ø70 / 60 / 40 mm
– Air-termination rod Al Ø22/16/10 mm, length 2500 mm or StSt Ø10 mm, length 1000 mm
– Screw foundation St/tZn, length 800 mm with braces, length 530 mm and M10 locking screws with lock nut
– Earth connection lug with hole Ø11 mm

Advantages:
– Easy erection due to tapered design St/tZn and aluminium
– If necessary, the air-termination mast can be easily removed from the screw foundation and put down

6 Termékek

Cikkszám 103121 TBM 6M SCFU STTZN AL

GTIN 4013364112711, Vámtarifa szám (EU): 85389099, Bruttó súly: 33.00 kg, PU: 1.00 pc(s)


Képek

További információ

Telescopic lightning protection masts with screw-in foundation, height: 6000 mm
Telescopic lightning protection masts with screw-in foundation
for protecting
special facilities, such as biogas plants and free field PV systems, against direct lightning strikes.
No excavation or foundation work is required.
The screw-in foundation is simply screwed
into the natural soil and also fixed with
earth rods without any special preparation.
For additional
fixing, 3x earth rods, Ø20 mm, length
1500 mm (part no. 620 151), are required per screw-in foundation (to be ordered separately).
The telescopic lightning protection masts with screw-in foundation are dimensioned to
Eurocode 1 (DIN EN 1991-1-4 + DIN EN 1991-1-4/NA) for a
max. gust wind speed of 229 km/h.
Material: St/tZn / Al / StSt
Height above ground level: 6000 mm
Standard: EN 62561-(1+2)

Brand: DEHN
Type: TBM 6M SCFU STTZN AL
Part No.: 103121
or equivalent.

Tanúsítványok

 

Műszaki adatok

Material St/tZn / Al / StSt
Height above ground level (l1) 6000 mm
Max. gust wind speed See wind load pamphlet
Standard EN 62561-(1+2)

A 103121 termék hozzá lett adva a jegyzettömbhöz.

A 103121 terméket hozzáadtuk a kosárhoz.

Webshop indítása

Cikkszám 103122 TBM 7M SCFU STTZN AL

GTIN 4013364112728, Vámtarifa szám (EU): 85389099, Bruttó súly: 33.20 kg, PU: 1.00 pc(s)


Képek

További információ

Telescopic lightning protection masts with screw-in foundation, height: 7000 mm
Telescopic lightning protection masts with screw-in foundation
for protecting special facilities, such as biogas plants
and free field PV systems, against direct lightning strikes.
No excavation or foundation work is required.
The screw-in foundation is simply screwed
into the natural soil and also fixed with
earth rods without any special preparation.
For additional
fixing, 3x earth rods, Ø20 mm, length
1500 mm (part no. 620 151), are required per screw-in foundation (to be ordered separately).
The telescopic lightning protection masts with screw-in foundation are dimensioned to
Eurocode 1 (DIN EN 1991-1-4 + DIN EN 1991-1-4/NA) for a
max. gust wind speed of 185 km/h.
Material: St/tZn / Al
Height above ground level: 7000 mm
Standard: EN 62561-(1+2)

Brand: DEHN
Type: TBM 7M SCFU STTZN AL
Part No.: 103122
or equivalent.

Tanúsítványok

 

Műszaki adatok

Material St/tZn / Al
Height above ground level (l1) 7000 mm
Max. gust wind speed See wind load pamphlet
Standard EN 62561-(1+2)

A 103122 termék hozzá lett adva a jegyzettömbhöz.

A 103122 terméket hozzáadtuk a kosárhoz.

Webshop indítása

Cikkszám 103123 TBM 8M SCFU STTZN AL

GTIN 4013364112735, Vámtarifa szám (EU): 85389099, Bruttó súly: 37.60 kg, PU: 1.00 pc(s)


Képek

További információ

Telescopic lightning protection masts with screw-in foundation, height: 8000 mm
Telescopic lightning protection masts with screw-in foundation
for protecting
special facilities, such as biogas plants and free field PV systems, against direct lightning strikes.
No excavation or foundation work is required.
The screw-in foundation is simply screwed
into the natural soil and also fixed with
earth rods without any special preparation.
For additional
fixing, 3x earth rods, Ø20 mm, length
1500 mm (part no. 620 151), are required per screw-in foundation (to be ordered separately).
The telescopic lightning protection masts with screw-in foundation are dimensioned according to
Eurocode 1 (DIN EN 1991-1-4 + DIN EN 1991-1-4/NA) for a
max. gust wind speed of 177 km/h.
Material: St/tZn / Al / StSt
Height above ground level: 8000 mm
Standard: EN 62561-(1+2)

Brand: DEHN
Type: TBM 8M SCFU STTZN AL
Part No.: 103123
or equivalent.

Tanúsítványok

 

Műszaki adatok

Material St/tZn / Al / StSt
Height above ground level (l1) 8000 mm
Max. gust wind speed See wind load pamphlet
Standard EN 62561-(1+2)

A 103123 termék hozzá lett adva a jegyzettömbhöz.

A 103123 terméket hozzáadtuk a kosárhoz.

Webshop indítása

Cikkszám 103124 TBM 9M SCFU STTZN AL

GTIN 4013364112742, Vámtarifa szám (EU): 85389099, Bruttó súly: 37.60 kg, PU: 1.00 pc(s)


Képek

További információ

Telescopic lightning protection masts with screw-in foundation, height: 9000 mm
Telescopic lightning protection masts with screw-in foundation
for protecting
special facilities, such as biogas plants and free field PV systems, against direct lightning strikes.
No excavation or foundation work is required.
The screw-in foundation is simply screwed
into the natural soil and also fixed with
earth rods without any special preparation.
For additional
fixing, 3x earth rods, Ø20 mm, length
1500 mm (part no. 620 151), are required per screw-in foundation (to be ordered separately).
The telescopic lightning protection masts with screw-in foundation are dimensioned according to
Eurocode 1 (DIN EN 1991-1-4 + DIN EN 1991-1-4/NA) for a
max. gust wind speed of 159 km/h.
Material: St/tZn / Al
Height above ground level: 9000 mm
Standard: EN 62561-(1+2)

Brand: DEHN
Type: TBM 9M SCFU STTZN AL
Part No.: 103124
or equivalent.

Tanúsítványok

 

Műszaki adatok

Material St/tZn / Al
Height above ground level (l1) 9000 mm
Max. gust wind speed See wind load pamphlet
Standard EN 62561-(1+2)

A 103124 termék hozzá lett adva a jegyzettömbhöz.

A 103124 terméket hozzáadtuk a kosárhoz.

Webshop indítása

Cikkszám 103125 TBM 10M SCFU STTZN AL

GTIN 4013364112759, Vámtarifa szám (EU): 85389099, Bruttó súly: 42.20 kg, PU: 1.00 pc(s)


Képek

További információ

Telescopic lightning protection masts with screw-in foundation, height: 10000 mm
Telescopic lightning protection masts with screw-in foundation
for protecting
special facilities, such as biogas plants and free field PV systems, against direct lightning strikes.
No excavation or foundation work is required.
The screw-in foundation is simply screwed
into the natural soil and also fixed with
earth rods without any special preparation.
For additional
fixing, 3x earth rods, Ø20 mm, length
1500 mm (part no. 620 151), are required per screw-in foundation (to be ordered separately).
The telescopic lightning protection masts with screw-in foundation are dimensioned to
Eurocode 1 (DIN EN 1991-1-4 + DIN EN 1991-1-4/NA)
for a max. gust wind speed of 116 km/h.
Material: St/tZn / Al / StSt
Height above ground level: 10000 mm
Standard: EN 62561-(1+2)

Brand: DEHN
Type: TBM 10M SCFU STTZN AL
Part No.: 103125
or equivalent.

Tanúsítványok

 

Műszaki adatok

Material St/tZn / Al / StSt
Height above ground level (l1) 10000 mm
Max. gust wind speed See wind load pamphlet
Standard EN 62561-(1+2)

A 103125 termék hozzá lett adva a jegyzettömbhöz.

A 103125 terméket hozzáadtuk a kosárhoz.

Webshop indítása

Cikkszám 103126 TBM 11M SCFU STTZN AL

GTIN 4013364112841, Vámtarifa szám (EU): 85389099, Bruttó súly: 42.40 kg, PU: 1.00 pc(s)


Képek

További információ

Telescopic lightning protection masts with screw-in foundation, height: 11000 mm
Telescopic lightning protection masts with screw-in foundation
for protecting special facilities, such as biogas plants
and free field PV systems, against direct lightning strikes.
No excavation or foundation work is required.
The screw-in foundation is simply screwed
into the natural soil and also fixed with
earth rods without any special preparation.
For additional
fixing, 3x earth rods, Ø20 mm, length
1500 mm (part no. 620 151), are required per screw-in foundation (to be ordered separately).
The telescopic lightning protection masts with screw-in foundation are dimensioned to
Eurocode 1 (DIN EN 1991-1-4 + DIN EN 1991-1-4/NA)
for a max. gust wind speed of 112 km/h.
Material: St/tZn / Al
Height above ground level: 11000 mm
Standard: EN 62561-(1+2)

Brand: DEHN
Type: TBM 11M SCFU STTZN AL
Part No.: 103126
or equivalent.

Tanúsítványok

 

Műszaki adatok

Material St/tZn / Al
Height above ground level (l1) 11000 mm
Max. gust wind speed See wind load pamphlet
Standard EN 62561-(1+2)

A 103126 termék hozzá lett adva a jegyzettömbhöz.

A 103126 terméket hozzáadtuk a kosárhoz.

Webshop indítása

back to top