Nyomóvízálló falátvezető fehér kád számára

Az aktuális építési technológiában az alápincézett épületeket gyakran „fehér kád” formájában tervezik. A fehér kádhoz nincs szükség további vízszigetelő rétegre, mivel a padlólemez és a külső falak a DIN EN 206-1 és a DIN 1045-2 szabványoknak megfelelően nagy vízáteresztő képességű betonból készült zárt kádként készülnek. Ezt a betont vízzáró (más néven WU) betonnak nevezik.

A földelőanyag legalább 5 cm-es betonfedéssel végzett történő beépítésével (korrózióvédelmi intézkedés) a beépítési területen nem kell további nedvességgel számolni, így a beton szigetelésként hat. Ezen okból a fehér kádas épületeknél a földelőt kívül kell elhelyezni. Ez a földelő új épületeknél általában a tisztasági rétegbe kerül az alaplemez alatt.
A vízzáró beton (WU-beton) módosított receptúrájának kihatásait az aktuális DIN 18014 „Betonalap földelők – Általános tervezési alapok”:2007-09 írja le.
A DIN 18014 szabvány szerint az alaplemezek alatt hálószerűen elhelyezett gyűrűs földelőket a potenciálkiegyenlítés részeként az épületen belüli fő földelősínre (HES) (korábban: HPAS fő potenciálkiegyenlítő sín) kell vezetni.

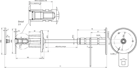
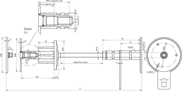
Az elektromos bekötést a gyűrűs földelőre is vízzáróan kell kivitelezni. A DEHN a vízzáró falátvezető fejlesztése során a fehér káddal szembeni követelményeket a termékre is átvitte. Ennek alapján a fejlesztés során kimondottan ügyelt arra, hogy lehetőleg valós alkatrészkövetelmények legyenek kerüljenek képbe. Ezért a vizsgálati darabokat bebetonozták egy betontestbe (1. ábra) és ezt követően nyomásos vízpróbának vetették alá. A normál építési technológiában 10 m mélységig szokásosak beépítési helyzetek (pl. mélygarázsban). Ez a beépítési helyzet átvitelre került a vizsgálati darabokra és azokat 1 bar víznyomással terhelték (2. ábra). A felhasznált beton megszilárdulása után a vizsgálati darabokat víznyomással tesztelték és egy hosszú távú (65 órás) teszttel ellenőrizték a vízzáróságot.
Megnövekedett nehézségi fokot jelent az átvezetéseknél a kapilláris hatás. Ez alatt az értendő, hogy a folyadékok (pl. víz) másképp terjednek a szűk résekben vagy csövekben és szabályosan beszívódnak az épület belsejébe. Ezeket az esetleges szűk réseket vagy csöveket a kötési folyamat és a beton ezzel összefüggő zsugorodása okozhatja.
Ezért a falátvezető zsaluzatba történő beépítésekor is fontos a szakszerű és helyes munkavégzés, ahogyan azt a kapcsolódó beépítési útmutató részletesen leírja.

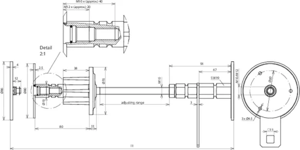
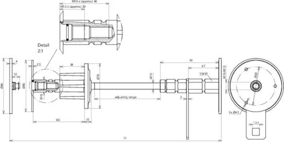
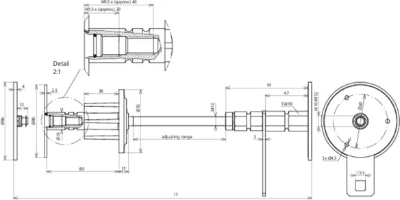
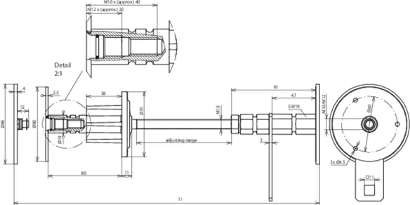
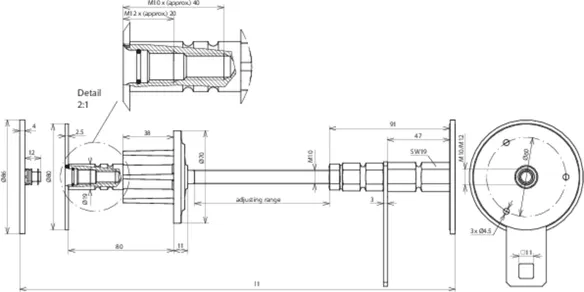
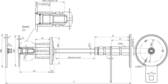
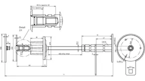
– kivitel a zsalubeépítéshez vízzárral és M10 / M12 duplamenettel pl. potenciálkiegyenlítő sínre csatlakozáshoz
– beállítható falvastagságtól függően M10 menettel és ellenanyával
– az átvezetés adott esetben a meneten is rövidíthető
csatlakozóelemmel együtt (St/tZn méret 30 x 4 mm) négyszögletes furattal a befogóbakkal való csatlakozáshoz kör keresztmetszetű vezetőnél vagy keresztelemmel lapos szalagnál

3 Termékek

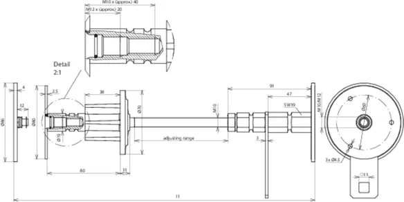
Cikkszám 478530 WD M10 12 V4A DWD L200 300 STTZN

GTIN 4013364120341, Vámtarifa szám (EU): 85359000, Bruttó súly: 697.00 g, PU: 10.00 db.


Képek

További információ

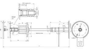
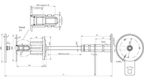
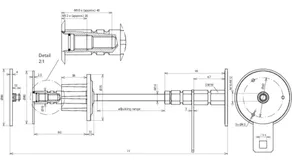
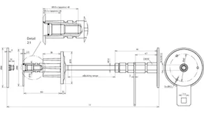
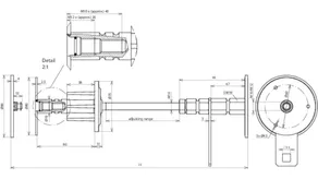
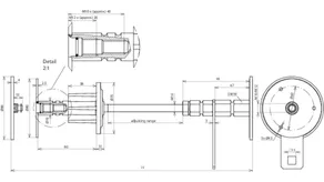
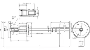
Nyomóvízálló falátvezető fehér kád számára NIRO (V4A)
Vízzáró falátvezető, fehér kádhoz alkalmas
nyomóvízálló átvezetésre falakon át,
pl. a gyűrűs földelő összekapcsolására
a potenciálkiegyenlítő sínnel vagy a
potenciálkiegyenlítő vezetővel az alapban.
Lemez anyaga: NIRO (V4A)
Anyagszám: 1.4571 / 1.4404 / 1.4401
Tengely anyaga: St/tZn
Falvastagság: 200-300 mm
Csatlakozómenet: M10 / 12
Rövidzárlati áram (AC 50 Hz / DC): 2,6 kA
Szabványhivatkozás: DIN EN 62561-(1+5)

Gyártó: DEHN
Típus: WD M10 12 V4A DWD L200 300 STTZN
Cikksz.: 478530
vagy egyenértékű.

Tanúsítványok

 

Műszaki adatok

Lemez anyaga NIRO (V4A)
Anyagszám 1.4571 / 1.4404 / 1.4401
Tengely anyaga St/tZn
Falvastagság (l1) 200-300 mm
Csatlakozómenet M10 / 12
Csatlakozólemez Ø 80 mm
Rövidzárlati áram (AC 50 Hz / DC) (1 s; ≤ 300 °C) 2,6 kA
Szabványhivatkozás DIN EN 62561-(1+5)

A 478530 termék hozzá lett adva a jegyzettömbhöz.

A 478530 terméket hozzáadtuk a kosárhoz.

Webshop indítása

Cikkszám 478540 WD M10 12 V4A DWD L300 400 STTZN

GTIN 4013364120358, Vámtarifa szám (EU): 85359000, Bruttó súly: 750.00 g, PU: 4.00 db.


Képek

További információ

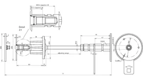
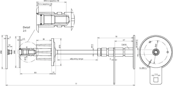
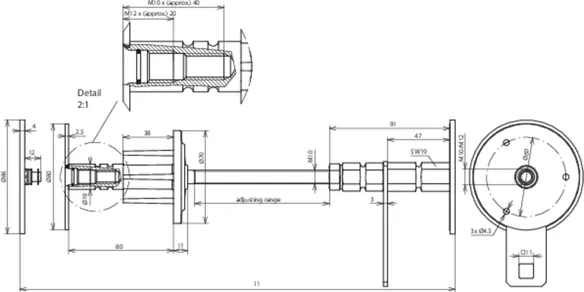
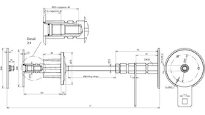
Nyomóvízálló falátvezető fehér kád számára NIRO (V4A)
Vízzáró falátvezető, fehér kádhoz alkalmas
nyomóvízálló átvezetésre falakon át, pl.
a gyűrűs földelő összekapcsolására a
potenciálkiegyenlítő sínnel vagy a potenciálkiegyenlítő
vezetővel az alapban.
Lemez anyaga: NIRO (V4A)
Anyagszám: 1.4571 / 1.4404 / 1.4401
Tengely anyaga: St/tZn
Falvastagság: 300-400 mm
Csatlakozómenet: M10 / 12
Rövidzárlati áram (AC 50 Hz / DC): 2,4 kA
Szabványhivatkozás: DIN EN 62561-(1+5)

Gyártó: DEHN
Típus: WD M10 12 V4A DWD L300 400 STTZN
Cikksz.: 478540
vagy egyenértékű.

Tanúsítványok

 

Műszaki adatok

Lemez anyaga NIRO (V4A)
Anyagszám 1.4571 / 1.4404 / 1.4401
Tengely anyaga St/tZn
Falvastagság (l1) 300-400 mm
Csatlakozómenet M10 / 12
Csatlakozólemez Ø 80 mm
Rövidzárlati áram (AC 50 Hz / DC) (1 s; ≤ 300 °C) 2,4 kA
Szabványhivatkozás DIN EN 62561-(1+5)

A 478540 termék hozzá lett adva a jegyzettömbhöz.

A 478540 terméket hozzáadtuk a kosárhoz.

Webshop indítása

Cikkszám 478550 WD M10 12 V4A DWD L400 500 STTZN

GTIN 4013364120365, Vámtarifa szám (EU): 85359000, Bruttó súly: 838.50 g, PU: 4.00 db.


Képek

További információ

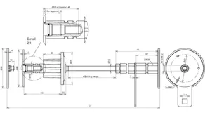
Nyomóvízálló falátvezető fehér kád számára NIRO (V4A)
Vízzáró falátvezető, fehér kádhoz alkalmas
nyomóvízálló átvezetésre falakon át, pl.
a gyűrűs földelő összekapcsolására a
potenciálkiegyenlítő sínnel vagy a potenciálkiegyenlítő
vezetővel az alapban.
Lemez anyaga: NIRO (V4A)
Anyagszám: 1.4571 / 1.4404 / 1.4401
Tengely anyaga: St/tZn
Falvastagság: 400-500 mm
Csatlakozómenet: M10 / 12
Rövidzárlati áram (AC 50 Hz / DC): 2 kA
Szabványhivatkozás: DIN EN 62561-(1+5)

Gyártó: DEHN
Típus: WD M10 12 V4A DWD L400 500 STTZN
Cikksz.: 478550
vagy egyenértékű.

Tanúsítványok

 

Műszaki adatok

Lemez anyaga NIRO (V4A)
Anyagszám 1.4571 / 1.4404 / 1.4401
Tengely anyaga St/tZn
Falvastagság (l1) 400-500 mm
Csatlakozómenet M10 / 12
Csatlakozólemez Ø 80 mm
Rövidzárlati áram (AC 50 Hz / DC) (1 s; ≤ 300 °C) 2 kA
Szabványhivatkozás DIN EN 62561-(1+5)

A 478550 termék hozzá lett adva a jegyzettömbhöz.

A 478550 terméket hozzáadtuk a kosárhoz.

Webshop indítása

back to top