Felfogórúd a HVI light vezeték tető alatti szerelése számára

Rátétszereléshez a tetőszaru-tartóra.HVI light vezeték vizuálisan illesztett belső fektetés a támasztócsőben. A HVI light vezeték a tetőszaru-tartó rögzített csövén át van vezetve és az ellen- / tetőlécezés területén fektetve.Előnyei:
  • Tető alatti szerelés – vizuális nem felismerhető
  • Rátétszerelés csak egy látható csővel
  • Nincs mechanikus igénybevétel pl. hóterheléssel.
A minimálisan rendelhető hossz 6 m. A vezetékhossz a megrendelésnél megadandó (0,5 m lépésekben).A rendelésre történő gyártás következtében (méretre vágott) a vezetéket nem tudjuk visszavenni.

DEHNcon-H / HVI light vezeték támasztócsőben felfogócsúccsal

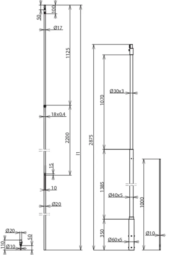
Belső végelzáróval és felfogócsúccsal Ø10 mm.

1 Termék

Cikkszám 819243 HVI LI 20 L6M SR2875 FSP1000 DSH GFK AL

GTIN 4013364255951, Vámtarifa szám (EU): 85389099, Bruttó súly: 9.24 kg, PU: 1.00 db.

Kifutott termék:

Képek

További információ

Felfogórúd a HVI light vezeték tető alatti szerelése számára
Felfogórúd HVI light vezetékkel és felfogócsúccsal
tető alatti fektetéshez rátétszereléshez a tetőszaru-tartóra
A HVI light vezeték a tetőszaru-tartó rögzített csövén át van vezetve
és az ellen- / tetőlécezés területén fektetve.
A tartócsövek az
Eurocode 1 (DIN EN 1991-1-4 + DIN EN 1991-1-4/NA) szerint vannak méretezve.
DEHNcon-H HVI light vezeték támasztócsőben, speciális
belső végelzáróval és felfogócsúccsal Ø10 mm, hossz 1000 mm
Tartócső anyaga: Üvegszál erősítésű műanyag (GRP) / Al
Tartócső hossza: 2875 mm
Vezeték színe: szürke ●
Vezető anyaga: Cu
Ekvivalens elválasztási távolság s (levegőben): ≤ 45 cm
Minimálisan rendelhető hossz: 6 m
Szabványhivatkozás: DIN IEC/TS 62561-8 (VDE V 0185-561-8)

Gyártó: DEHN
Típus: HVI LI 20 L6M SR2875 FSP1000 DSH GFK AL
Cikksz.: 819243
vagy egyenértékű.

Tanúsítványok

 

Műszaki adatok

Tartócső anyaga Üvegszál erősítésű műanyag (GRP) / Al
Tartócső hossza 2875 mm
Felfogócsúcs hossza 1000 mm
Átmérő Ø külső GFK 30 mm
Átmérő Ø vezeték 20 mm
Vezeték színe szürke
Vezető anyaga Cu
Ekvivalens elválasztási távolság s (levegőben) ≤ 45 cm
Minimálisan rendelhető hossz 6 m
Szabványhivatkozás DIN IEC/TS 62561-8 (VDE V 0185-561-8)

A 819243 termék hozzá lett adva a jegyzettömbhöz.

A 819243 terméket hozzáadtuk a kosárhoz.

Webshop indítása

back to top