Állványok támasztócsövekhez oldalsó nyílással

Állványok HVI-támasztócsövek fogadására belül/kívül fektetett HVI vezeték számára a támasztócsőben/támasztócsövön, kettős átfedéssel 2x Rd 8-10 mm csatlakozáshoz. Illesztve a max. 10°-os tetőhajlatra változó rögzítéssel a talptartón.

A tartozéknál külön elérhetők az egymásra rakható betontalpak, az alátétlap, a talptartó készlet további talpak felvételére.

Megjegyzés: A tetővezetőtartók, valamint alátétlapok anyagkompatibilitására vonatkozó információk tetőelemekkel kapcsolatban a DEHN cégtől kérhetők.

Kicsi háromlábú állvány

D40 felfogórudak, DEHNiso-Combi támasztócsövek felfogócsúccsal / -rúddal vagy HVI vezeték számára támasztócsőben/csövön fektetve.

1 Termék

Cikkszám 107390 DBS KB D50 RA680 V2A

GTIN 4013364478466, Vámtarifa szám (EU): 85389099, Bruttó súly: 7.75 kg, PU: 1.00 db.

Kifutott termék:

Képek

További információ

Háromlábú állvány kicsi NIRO (behajtható kivitel)
Háromlábú állvány (behajtható kivitel) támasztócsövek számára
D 50 mm oldalsó kimenettel vagy felfogórúddal
D 40 mm szűkítő tartozékkal
Kettős átfedéssel 2x Rd 8-10 mm csatlakozáshoz
Betontalpas kivitelezéshez (súly 17 kg)
Tetőhajlat szögének kiegyenlítése max. 10°-ig
Egymásra rakható betontalp (cikkszám 102 010)
Alátétlap (cikkszám 102 050)
Talptartó készlet (cikkszám 107 396)
Szűkítő tartozék (cikkszám 107 399)
külön rendelhetők.
A háromlábú állványok az
Eurocode 1 (DIN EN 1991-1-4 + DIN EN 1991-1-4/NA) szerint
vannak méretezve.
Állvány anyaga: NIRO
Fogadó: 50 és 40*) mm
Sugár: 680 mm

Gyártó: DEHN
Típus: DBS KB D50 RA680 V2A
Cikksz.: 107390
vagy egyenértékű.

Tanúsítványok

 

Műszaki adatok

Állvány anyaga NIRO
Fogadó 50 és 40*) mm
Sugár 680 mm
Állvány helyigénye 1175 x 1020 mm
*) Csak adapterkészlettel cikkszám 107 399.

A 107390 termék hozzá lett adva a jegyzettömbhöz.

A 107390 terméket hozzáadtuk a kosárhoz.

Webshop indítása

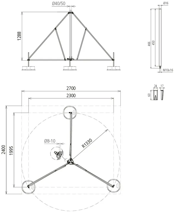
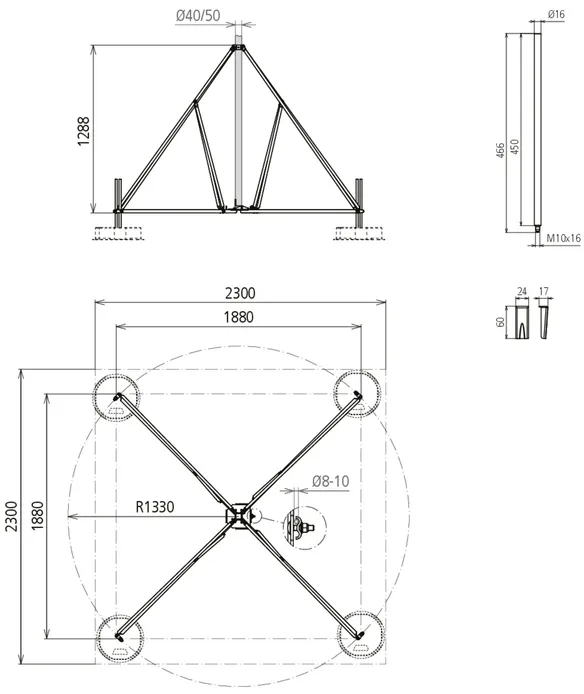
Nagy háromlábú állvány

D40 felfogórudak, DEHNiso-Combi támasztócsövek felfogócsúccsal / -rúddal vagy HVI vezeték számára támasztócsőben/csövön fektetve.

1 Termék

Cikkszám 107391 DBS KB D50 RA1330 V2A

GTIN 4013364478473, Vámtarifa szám (EU): 85389099, Bruttó súly: 15.60 kg, PU: 1.00 db.

Kifutott termék:

Képek

További információ

Háromlábú állvány nagy NIRO (behajtható kivitel)
Háromlábú állvány (behajtható kivitel) támasztócsövek számára
D 50 mm oldalsó kimenettel és kettős átfedéssel
2x Rd 8-10 mm csatlakozáshoz,
betontalp (súly 17 kg) illesztéssel
talptartó készlet útján a max. 10°-os tetőhajlatra.
Egymásra rakható betontalp (cikkszám 102 010)
Alátétlap (cikkszám 102 050)
Talptartó készlet (cikkszám 107 396)
Szűkítő tartozék (cikkszám 107 399)
külön rendelhetők.
A háromlábú állványok az
Eurocode 1 (DIN EN 1991-1-4 + DIN EN 1991-1-4/NA) szerint
vannak méretezve.
Állvány anyaga: NIRO
Fogadó: 50 és 40*) mm
Sugár: 1330 mm

Gyártó: DEHN
Típus: DBS KB D50 RA1330 V2A
Cikksz.: 107391
vagy egyenértékű.

 

Műszaki adatok

Állvány anyaga NIRO
Fogadó 50 és 40*) mm
Sugár 1330 mm
Állvány helyigénye 2300 x 1995 mm
*) Csak adapterkészlettel cikkszám 107 399.

A 107391 termék hozzá lett adva a jegyzettömbhöz.

A 107391 terméket hozzáadtuk a kosárhoz.

Webshop indítása

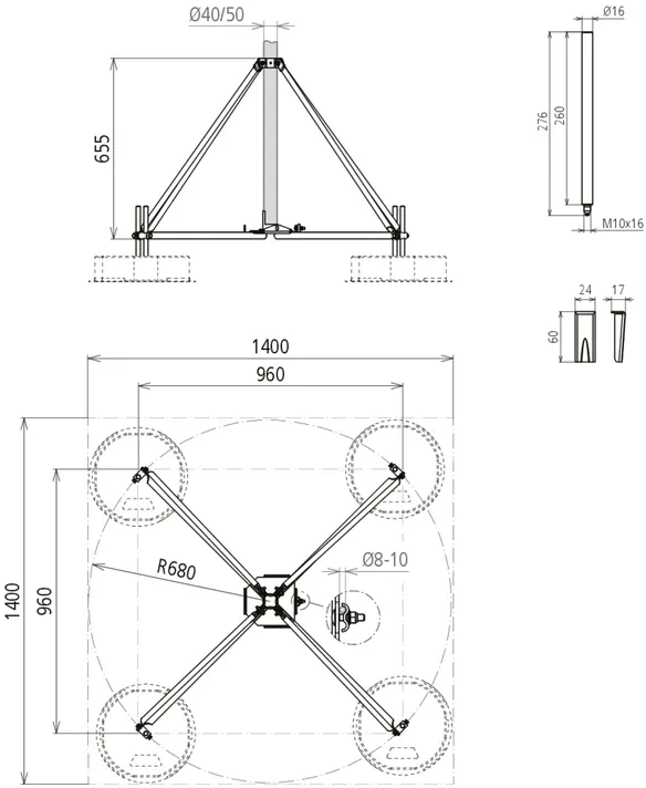
Kicsi négylábú állvány

D40 felfogórudak, DEHNiso-Combi támasztócsövek felfogócsúccsal / -rúddal vagy HVI vezeték számára támasztócsőben/csövön fektetve.

1 Termék

Cikkszám 107490 VBS KB D50 RA680 V2A

GTIN 4013364478480, Vámtarifa szám (EU): 85389099, Bruttó súly: 10.38 kg, PU: 1.00 db.


Képek

További információ

Négylábú állvány kicsi NIRO (behajtható kivitel)
Négylábú állvány (behajtható kivitel) támasztócsövek számára
D 50 mm oldalsó kimenettel vagy felfogórúddal
D 40 mm szűkítő tartozékkal
Kettős átfedéssel 2x Rd 8-10 mm csatlakozáshoz
Betontalpas kivitelezéshez (súly 17 kg)
Tetőhajlat szögének kiegyenlítése max. 10°-ig
Egymásra rakható betontalp (cikkszám 102 010)
Alátétlap (cikkszám 102 050)
Talptartó készlet (cikkszám 107 396)
Szűkítő tartozék (cikkszám 107 399)
külön rendelhetők.
A négylábú állványok az
Eurocode 1 (DIN EN 1991-1-4 + DIN EN 1991-1-4/NA) szerint
vannak méretezve.
Állvány anyaga: NIRO
Fogadó: 50 és 40*) mm
Sugár: 680 mm

Gyártó: DEHN
Típus: VBS KB D50 RA680 V2A
Cikksz.: 107490
vagy egyenértékű.

Tanúsítványok

 

Műszaki adatok

Állvány anyaga NIRO
Fogadó 50 és 40*) mm
Sugár 680 mm
Állvány helyigénye 960 x 960 mm
*) Csak adapterkészlettel cikkszám 107 399.

A 107490 termék hozzá lett adva a jegyzettömbhöz.

A 107490 terméket hozzáadtuk a kosárhoz.

Webshop indítása

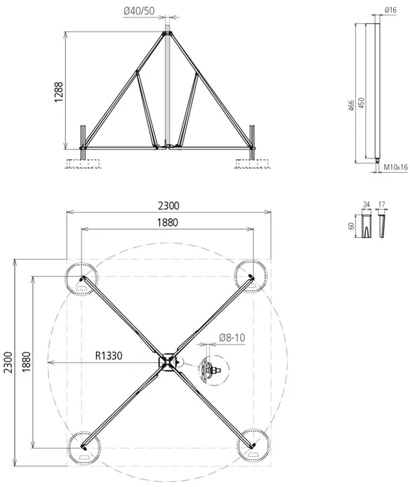
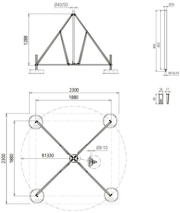
Nagy négylábú állvány

D40 felfogórudak, DEHNiso-Combi támasztócsövek felfogócsúccsal / -rúddal vagy HVI vezeték számára támasztócsőben/csövön fektetve.

1 Termék

Cikkszám 107491 VBS KB D50 RA1330 V2A

GTIN 4013364478497, Vámtarifa szám (EU): 85389099, Bruttó súly: 17.63 kg, PU: 1.00 db.


Képek

További információ

Nagy négylábú állvány NIRO (behajtható kivitel)
Négylábú állvány (behajtható kivitel) támasztócsövek számára
D 50 mm oldalsó kimenettel vagy felfogórúddal
D 40 mm szűkítő tartozékkal
Kettős átfedéssel 2x Rd 8-10 mm csatlakozáshoz
Betontalpas kivitelezéshez (súly 17 kg)
Tetőhajlat szögének kiegyenlítése max. 10°-ig
Egymásra rakható betontalp (cikkszám 102 010)
Alátétlap (cikkszám 102 050)
Talptartó készlet (cikkszám 107 396)
Szűkítő tartozék (cikkszám 107 399)
külön rendelhetők.
A négylábú állványok az
Eurocode 1 (DIN EN 1991-1-4 + DIN EN 1991-1-4/NA) szerint
vannak méretezve.
Állvány anyaga: NIRO
Fogadó: 50 és 40*) mm
Sugár: 1330 mm

Gyártó: DEHN
Típus: VBS KB D50 RA1330 V2A
Cikksz.: 107491
vagy egyenértékű.

 

Műszaki adatok

Állvány anyaga NIRO
Fogadó 50 és 40*) mm
Sugár 1330 mm
Állvány helyigénye 1880 x 1880 mm
*) Csak adapterkészlettel cikkszám 107 399.

A 107491 termék hozzá lett adva a jegyzettömbhöz.

A 107491 terméket hozzáadtuk a kosárhoz.

Webshop indítása

back to top