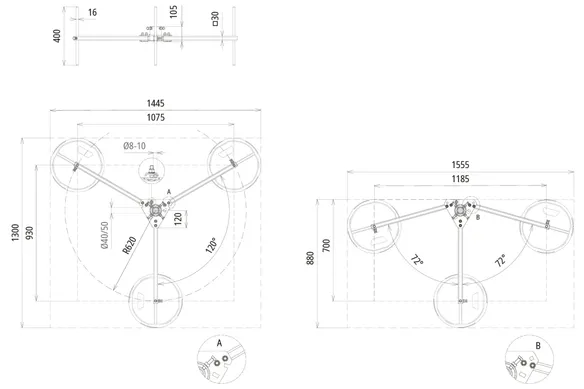
Háromlábú állványok támasztócsövekhez oldalsó nyílás nélkül

Állványok HVI-támasztócsövek fogadására belül/kívül fektetett HVI vezeték számára a támasztócsőben/támasztócsövön, kettős átfedéssel 2x Rd 8-10 mm csatlakozáshoz. Illesztve a max. 10°-os tetőhajlatra változó rögzítéssel a talptartón.

A tartozéknál külön elérhetők az egymásra rakható betontalpak, az alátétlap, a talptartó készlet további talpak felvételére.

Megjegyzés: A tetővezetőtartók, valamint alátétlapok anyagkompatibilitására vonatkozó információk tetőelemekkel kapcsolatban a DEHN cégtől kérhetők.

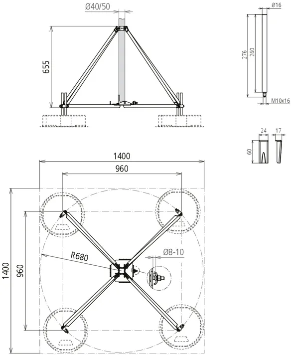
Kicsi háromlábú állvány

1 Termék

Cikkszám 107390 DBS KB D50 RA680 V2A

GTIN 4013364478466, Vámtarifa szám (EU): 85389099, Bruttó súly: 7.75 kg, PU: 1.00 db.

Kifutott termék:

Képek

További információ

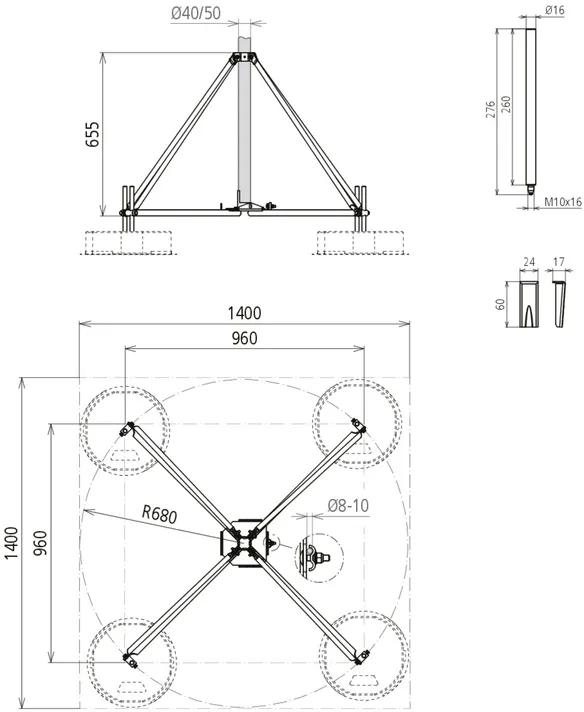
Háromlábú állvány kicsi NIRO (behajtható kivitel)
Háromlábú állvány (behajtható kivitel) támasztócsövek számára
D 50 mm oldalsó kimenettel vagy felfogórúddal
D 40 mm szűkítő tartozékkal
Kettős átfedéssel 2x Rd 8-10 mm csatlakozáshoz
Betontalpas kivitelezéshez (súly 17 kg)
Tetőhajlat szögének kiegyenlítése max. 10°-ig
Egymásra rakható betontalp (cikkszám 102 010)
Alátétlap (cikkszám 102 050)
Talptartó készlet (cikkszám 107 396)
Szűkítő tartozék (cikkszám 107 399)
külön rendelendő.
A háromlábú állványok az
Eurocode 1 (DIN EN 1991-1-4 + DIN EN 1991-1-4/NA) szerint
vannak méretezve.
Állvány anyaga: NIRO
Fogadó: 50 és 40*) mm
Sugár: 680 mm
Állvány helyigénye: 1175 x 1020 mm

Gyártó: DEHN
Típus: DBS KB D50 RA680 V2A
Cikksz.: 107390
vagy egyenértékű.

Tanúsítványok

 

Műszaki adatok

Állvány anyaga NIRO
Fogadó 50 és 40*) mm
Sugár 680 mm
Állvány helyigénye 1175 x 1020 mm
*) Csak adapterkészlettel cikkszám 107 399.

A 107390 termék hozzá lett adva a jegyzettömbhöz.

A 107390 terméket hozzáadtuk a kosárhoz.

Webshop indítása

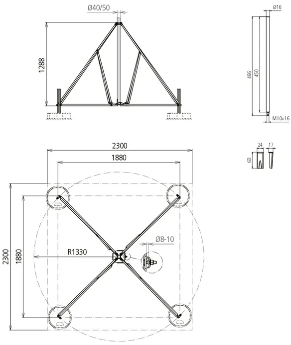
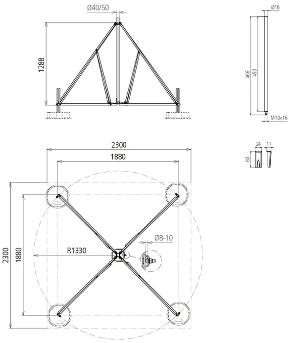
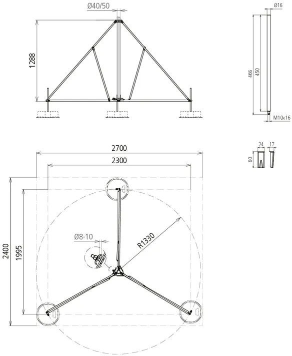
Nagy háromlábú állvány

1 Termék

Cikkszám 107391 DBS KB D50 RA1330 V2A

GTIN 4013364478473, Vámtarifa szám (EU): 85389099, Bruttó súly: 15.60 kg, PU: 1.00 db.

Kifutott termék:

Képek

További információ

Háromlábú állvány nagy NIRO (behajtható kivitel)
Háromlábú állvány (behajtható kivitel) támasztócsövek számára
D 50 mm mit oldalsó kimenettel és kettős átfedéssel
2x Rd 8-10 mm csatlakozáshoz,
betontalp (súly 17 kg) illesztéssel
talptartó készlet útján a max. 10°-os tetőhajlatra.
Egymásra rakható betontalp (cikkszám 102 010)
Alátétlap (cikkszám 102 050)
Talptartó készlet (cikkszám 107 396)
Szűkítő tartozék (cikkszám 107 399)
külön rendelendő.
A háromlábú állványok az
Eurocode 1 (DIN EN 1991-1-4 + DIN EN 1991-1-4/NA) szerint
vannak méretezve.
Állvány anyaga: NIRO
Fogadó: 50 és 40*) mm
Sugár: 1330 mm
Állvány helyigénye: 2300 x 1995 mm

Gyártó: DEHN
Típus: DBS KB D50 RA1330 V2A
Cikksz.: 107391
vagy egyenértékű.

 

Műszaki adatok

Állvány anyaga NIRO
Fogadó 50 és 40*) mm
Sugár 1330 mm
Állvány helyigénye 2300 x 1995 mm
*) Csak adapterkészlettel cikkszám 107 399.

A 107391 termék hozzá lett adva a jegyzettömbhöz.

A 107391 terméket hozzáadtuk a kosárhoz.

Webshop indítása

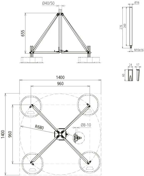
Kicsi négylábú állvány

1 Termék

Cikkszám 107490 VBS KB D50 RA680 V2A

GTIN 4013364478480, Vámtarifa szám (EU): 85389099, Bruttó súly: 10.38 kg, PU: 1.00 db.


Képek

További információ

Négylábú állvány kicsi NIRO (behajtható kivitel)
Négylábú állvány (behajtható kivitel) támasztócsövek számára
D 50 mm oldalsó kimenettel vagy felfogórúddal
D 40 mm szűkítő tartozékkal
Kettős átfedéssel 2x Rd 8-10 mm csatlakozáshoz
Betontalpas kivitelezéshez (súly 17 kg)
Tetőhajlat szögének kiegyenlítése max. 10°-ig
Egymásra rakható betontalp (cikkszám 102 010)
Alátétlap (cikkszám 102 050)
Talptartó készlet (cikkszám 107 396)
Szűkítő tartozék (cikkszám 107 399)
külön rendelendő.
A négylábú állványok az
Eurocode 1 (DIN EN 1991-1-4 + DIN EN 1991-1-4/NA) szerint
vannak méretezve.
Állvány anyaga: NIRO
Fogadó: 50 és 40*) mm
Sugár: 680 mm
Állvány helyigénye: 960 x 960 mm

Gyártó: DEHN
Típus: VBS KB D50 RA680 V2A
Cikksz.: 107490
vagy egyenértékű.

Tanúsítványok

 

Műszaki adatok

Állvány anyaga NIRO
Fogadó 50 és 40*) mm
Sugár 680 mm
Állvány helyigénye 960 x 960 mm
*) Csak adapterkészlettel cikkszám 107 399.

A 107490 termék hozzá lett adva a jegyzettömbhöz.

A 107490 terméket hozzáadtuk a kosárhoz.

Webshop indítása

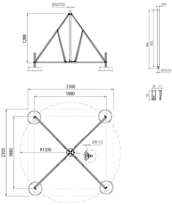
Nagy négylábú állvány

1 Termék

Cikkszám 107491 VBS KB D50 RA1330 V2A

GTIN 4013364478497, Vámtarifa szám (EU): 85389099, Bruttó súly: 17.63 kg, PU: 1.00 db.


Képek

További információ

Nagy négylábú állvány NIRO (behajtható kivitel)
Négylábú állvány (behajtható kivitel) támasztócsövek számára
D 50 mm oldalsó kimenettel vagy felfogórúddal
D 40 mm szűkítő tartozékkal
Kettős átfedéssel 2x Rd 8-10 mm csatlakozáshoz
Betontalpas kivitelezéshez (súly 17 kg)
Tetőhajlat szögének kiegyenlítése max. 10°-ig
Egymásra rakható betontalp (cikkszám 102 010)
Alátétlap (cikkszám 102 050)
Talptartó készlet (cikkszám 107 396)
Szűkítő tartozék (cikkszám 107 399)
külön rendelendő.
A négylábú állványok az
Eurocode 1 (DIN EN 1991-1-4 + DIN EN 1991-1-4/NA) szerint
vannak méretezve.
Állvány anyaga: NIRO
Fogadó: 50 és 40*) mm
Sugár: 1330 mm
Állvány helyigénye: 1880 x 1880 mm

Gyártó: DEHN
Típus: VBS KB D50 RA1330 V2A
Cikksz.: 107491
vagy egyenértékű.

 

Műszaki adatok

Állvány anyaga NIRO
Fogadó 50 és 40*) mm
Sugár 1330 mm
Állvány helyigénye 1880 x 1880 mm
*) Csak adapterkészlettel cikkszám 107 399.

A 107491 termék hozzá lett adva a jegyzettömbhöz.

A 107491 terméket hozzáadtuk a kosárhoz.

Webshop indítása

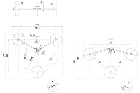
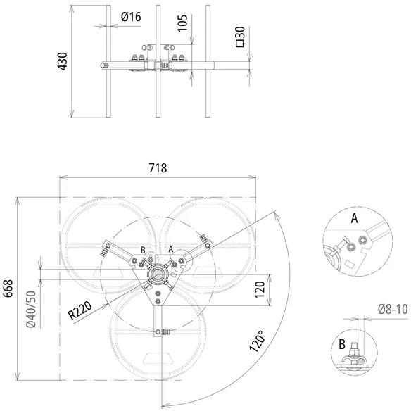
Kicsi háromlábú állvány St/tZn

Alkalmas a HVI vezeték belső fektetésére.

2 Termékek

Cikkszám 105351 DBS KB D40.50 RA620 STTZN

GTIN 4013364238916, Vámtarifa szám (EU): 85389099, Bruttó súly: 11.50 kg, PU: 1.00 db.


Képek

További információ

Háromlábú állvány HVI vezeték számára kicsi St/tZn
Háromlábú állvány HVI vezeték számára támasztócsőben
speciális kivitel támasztócsövek számára (hossza 3200 mm).
A HVI vezeték hajlítási sugarának betartásához
alul a háromlábú állványon két betontalpat a szár alatt
és egyet afölött kell pozicionálni.
Járulékos rögzítés nélkül a szerkezeti elemeken
Illesztés a max. 10°-os tetőhajlatra lehetséges.
Az egymásra rakható betonalapot (cikkszám: 102 010) és az
alaplapot (cikkszám: 102 050) külön kell megrendelni.
A háromlábú állványok az
Eurocode 1 (DIN EN 1991-1-4 + DIN EN 1991-1-4/NA) szerint vannak méretezve.
Állvány anyaga: St/tZn
Fogadó: 40 / 50 mm
Sugár: 620 mm
Betontalpak száma: 3-12 darab à 17 kg
Állvány helyigénye: 1300 x 1450 mm

Gyártó: DEHN
Típus: DBS KB D40.50 RA620 STTZN
Cikksz.: 105351
vagy egyenértékű.

Tanúsítványok

 

Műszaki adatok

Állvány anyaga St/tZn
Fogadó 40 / 50 mm
Sugár 620 mm
Betontalpak száma 3-12 darab à 17 kg
Állvány helyigénye 1300 x 1450 mm

A 105351 termék hozzá lett adva a jegyzettömbhöz.

A 105351 terméket hozzáadtuk a kosárhoz.

Webshop indítása

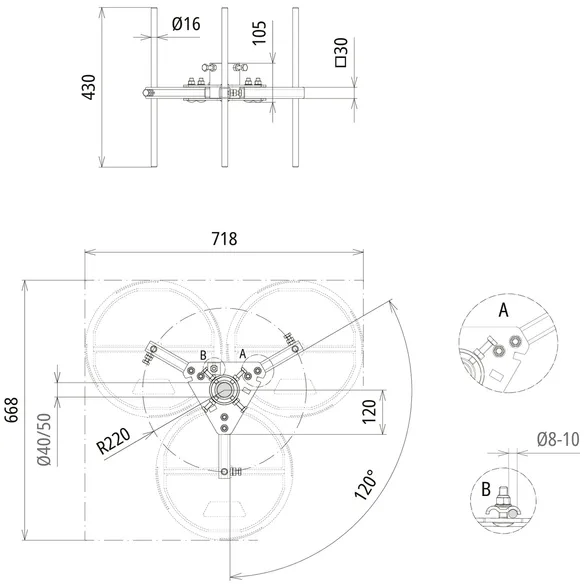
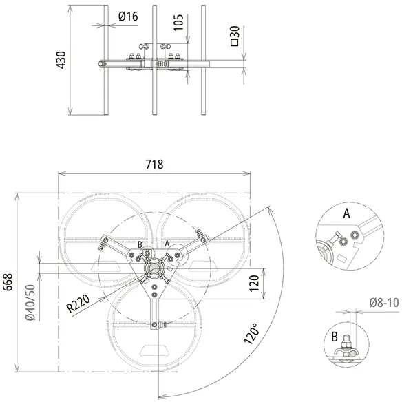
Cikkszám 105357 DBS KB D40.50 RA220 STTZN

GTIN 4013364527829, Vámtarifa szám (EU): 85389099, Bruttó súly: 8.04 kg, PU: 1.00 db.


Képek

További információ

Háromlábú állvány helytakarékos, állítható magasságú és
behajtható felfogórudak és támasztócsövek fogadására
Ø40mm és Ø50 mm
Tetőhajlat kiegyenlítése 10°-ig lehetséges.
Akár négy betontalp fogadása
lábanként lehetséges
Állvány anyaga: St/tZn
Fogadó: 40 / 50 mm
Sugár: 220 mm
Betontalpak száma: 3-12 darab à 17 kg
Állvány helyigénye: 668 x 718 mm

Gyártó: DEHN
Típus: DBS KB D40.50 RA220 STTZN
Cikksz.: 105357
vagy egyenértékű.

 

Műszaki adatok

Állvány anyaga St/tZn
Fogadó 40 / 50 mm
Sugár 220 mm
Betontalpak száma 3-12 darab à 17 kg
Állvány helyigénye 668 x 718 mm

A 105357 termék hozzá lett adva a jegyzettömbhöz.

A 105357 terméket hozzáadtuk a kosárhoz.

Webshop indítása

Nagy háromlábú állvány St/tZn

Alkalmas a HVI vezeték külső fektetésére.

1 Termék

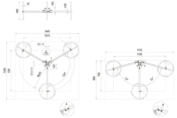
Cikkszám 105201 DBS KB D40.50 RA1435 STTZN

GTIN 4013364095915, Vámtarifa szám (EU): 85389099, Bruttó súly: 17.23 kg, PU: 1.00 db.


Képek

További információ

Háromlábú állvány HVI vezeték számára St/tZn
Háromlábú állvány HVI vezeték számára támasztócsőben
speciális kivitel támasztócsövek számára (hossza 4700 mm).
A HVI vezeték hajlítási sugarának betartásához
alul a háromlábú állványon két betontalpat a szár alatt
és egyet afölött kell pozicionálni.
Járulékos rögzítés nélkül a szerkezeti elemeken
Illesztés a max. 10°-os tetőhajlatra lehetséges.
Az egymásra rakható betonalapot (cikkszám: 102 010) és az
alaplapot (cikkszám: 102 050) külön kell megrendelni.
A háromlábú állványok az
Eurocode 1 (DIN EN 1991-1-4 + DIN EN 1991-1-4/NA) szerint méretezve.
Állvány anyaga: St/tZn
Fogadó: 40 / 50 mm
Sugár: 1435 mm
Betontalpak száma: 3-12 darab à 17 kg
Állvány helyigénye: 2520 x 2860 mm

Gyártó: DEHN
Típus: DBS KB D40.50 RA1435 STTZN
Cikksz.: 105201
vagy egyenértékű.

Tanúsítványok

 

Műszaki adatok

Állvány anyaga St/tZn
Fogadó 40 / 50 mm
Sugár 1435 mm
Betontalpak száma 3-12 darab à 17 kg
Állvány helyigénye 2520 x 2860 mm

A 105201 termék hozzá lett adva a jegyzettömbhöz.

A 105201 terméket hozzáadtuk a kosárhoz.

Webshop indítása

back to top