Felfogóoszlop HVI power vezetékkel

A teljes fogóberendezés 8,5 m-es maximális szabad hosszához, minimálisan rendelhető hossz 10 m.
Három változtatható hosszúságú tartóval kell rögzíteni (cikkszám: 105 345).

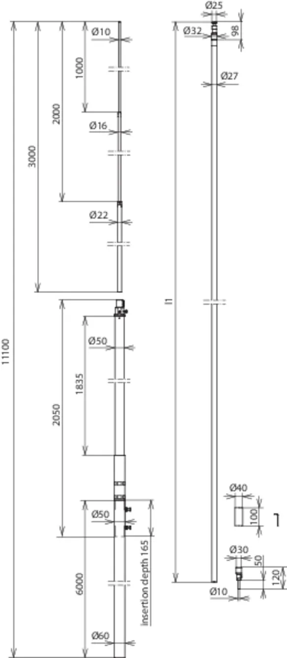
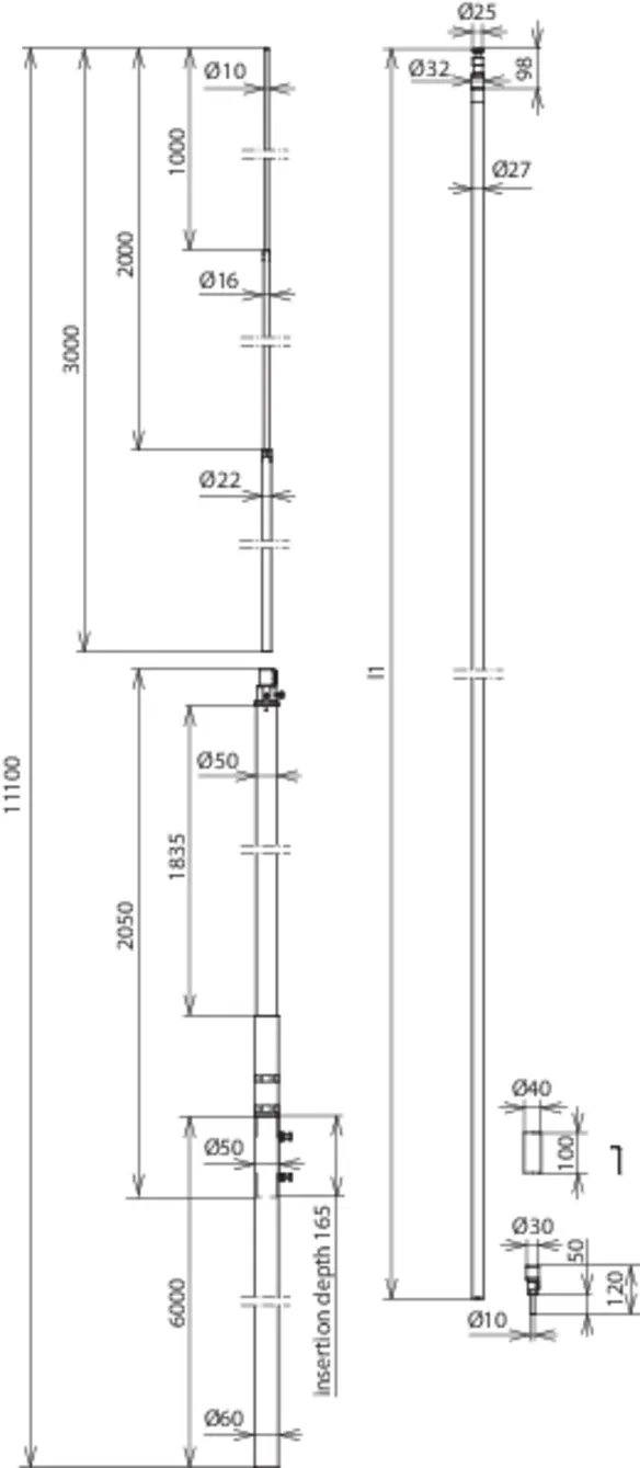
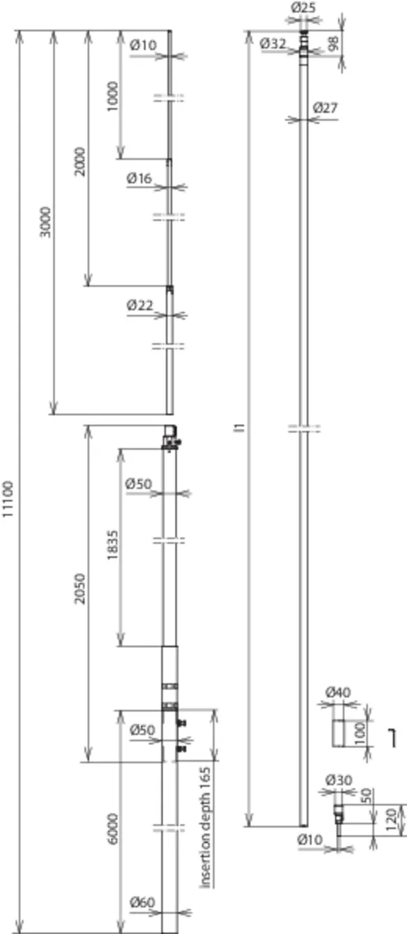
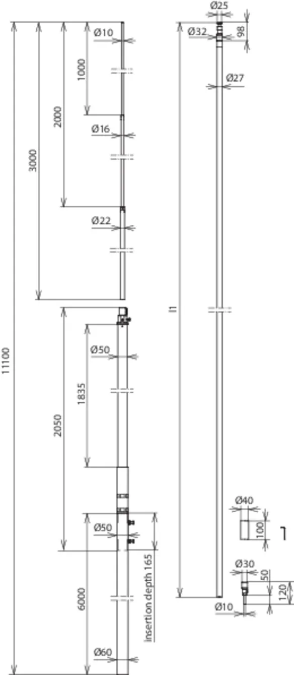
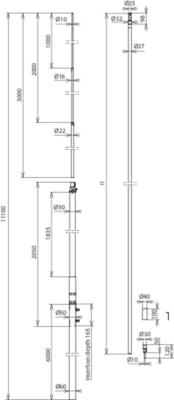
Az osztható felfogóoszlop részei:
– felfogórúd Al Ø22 / 16 / 10 mm, hossza 3000 mm
– támasztócső GFK/Al Ø50 / 60 mm, hossza 2300 mm (átdugás 200 mm)
– árboccső St/tZn, Ø60 mm, hossza 6000 mm reteszelőcsavarokkal M10 NIRO-ból
HVI power vezeték belül fektetve
– szállítási hossz 6000 mm

Kivitelezés 1x HVI power vezetékkel, belső fektetéssel. Kérjük a vezetékhosszat megadni rendeléskor (0,5 m-es lépésekben).

HVI power vezeték maximális teljes hossza 11,0 m a villámvédelmi rendszer I érintésvédelmi osztályánál.
HVI power vezeték maximális teljes hossza 15,0 m a villámvédelmi rendszer II érintésvédelmi osztályánál.
HVI power vezeték maximális teljes hossza 22,5 m a villámvédelmi rendszer III érintésvédelmi osztályánál.

1 Termék

Cikkszám 819760 FM 60 L11M IP HVIP L10M GFK AL STTZN

GTIN 4013364240391, Vámtarifa szám (EU): 85389099, Bruttó súly: 57.89 kg, PU: 1.00 db.

Kifutott termék:

Képek

További információ

Felfogóoszlopok HVI power vezetékkel
Felfogóoszlopok HVI power vezetékkel
nagyfeszültség-álló szigetelt levezetés
az elválasztási távolság betartásához
az elektromosan vezető elemekhez a
DIN EN 62305-3 (VDE 0185-305-3) szerint
Speciálisan olyan alkalmazásokhoz mint pl. erjesztőkád vagy
biogázerőmű gáztárolójánál
a villámvédelmi rendszer II érintésvédelmi osztálya szerint.
A felfogórudak az
Eurocode 1 (DIN EN 1991-1-4 + DIN EN 1991-1-4/NA) szerint vannak méretezve.
A felfogó részei:
-Felfogórúd Al Ø22/16/10 mm hossza 3000 mm
- tartócső GFK/Al Ø50/60 mm
- árboccső St/tZn Ø60 mm
plusz
3 db változó tartó (cikkszám 105 345)
a teljes fogóberendezés 8,5 m-es maximális szabad hossza
Kivitelezés 1x HVI power vezetékkel, belső fektetéssel,
minimálisan rendelhető hossz 10,0 m.
A HVI light plus vezeték további szükséges vezetékhosszát
külön kell megrendelni.
A HVI power vezeték (LPS I) maximális teljes hosszúsága 11,0 m.
A HVI power vezeték (LPS II) maximális teljes hosszúsága 15,0 m.
A HVI power vezeték (LPS III) maximális teljes hosszúsága 22,5 m.
Felfogórúd teljes hossza: 11000 mm
Felfogórúd hossza: 3000 mm
Tartócső hossza: 2300 mm
Árboccső hossza: 6000 mm
Átmérő Ø vezető: 27 mm
Vezeték színe: fekete ●
Vezető anyaga: Cu
Minimálisan rendelhető hossz: 10 m
Max. rendelési hossz: 35 m
Max. széllökés sebesség: (max. szabad hosszúság 8500 mm, 1x HVI power belül) 138 km/h
Szabványhivatkozás: DIN IEC/TS 62561-8 (VDE V 0185-561-8)

Gyártó: DEHN
Típus: FM 60 L11M IP HVIP L10M GFK AL STTZN
Cikksz.: 819760
vagy egyenértékű.

Tanúsítványok

 

Műszaki adatok

Felfogórúd teljes hossza 11000 mm
Felfogórúd hossza 3000 mm
Felfogórúd anyaga Al
Tartócső hossza 2300 mm
Tartócső anyaga Üvegszál erősítésű műanyag (GRP) / Al
Árboccső hossza 6000 mm
Árboccső anyaga St/tZn
Átmérő Ø vezető 27 mm
Vezeték színe fekete ●
Vezető anyaga Cu
Minimálisan rendelhető hossz 10 m
Max. rendelési hossz 35 m
Alkalmas csövön kívüli fektetéshez Nem
Szabványhivatkozás DIN IEC/TS 62561-8 (VDE V 0185-561-8)

A 819760 termék hozzá lett adva a jegyzettömbhöz.

A 819760 terméket hozzáadtuk a kosárhoz.

Webshop indítása

back to top