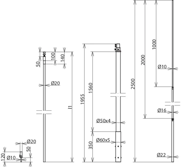
Felfogórúd a HVI vezeték tető alatti szerelése számára

Rátétszereléshez a tetőszaru-tartóra.HVI light vezeték vizuálisan illesztett belső fektetése tartócsőben. A HVI vezeték a tetőszaru-tartó rögzített csövén át van vezetve és az ellen- / tetőlécezés területén fektetve.Előnyei:
  • Tető alatti szerelés – vizuálisan nem felismerhető
  • Rátétszerelés csak egy látható csővel
  • Nincs mechanikus igénybevétel pl. hóterheléssel
A minimálisan rendelhető hossz 6 m. A vezetékhossz a megrendelésnél megadandó (0,5 m lépésekben).A rendelésre történő gyártás következtében (méretre vágott) a vezetéket nem tudjuk visszavenni.

HVI vezeték támasztócsőben felfogórúddal

1 Termék

Cikkszám 819247 HVI 20 M L6M SR1955 FS2500 DSH GFK AL

GTIN 4013364260900, Vámtarifa szám (EU): 85389099, Bruttó súly: 7.10 kg, PU: 1.00 db.


Képek

További információ

Felfogórúd a HVI vezeték tető alatti szerelése számára
Felfogórúd HVI vezetékkel és felfogócsúccsal tető
alatti fektetéshez rátétszereléshez a tetőszaru-tartóra
A HVI vezeték a tetőszaru-tartó rögzített csövén át van vezetve és az
ellen- / tetőlécezés területén fektetve.
A támasztócsövek az
Eurocode 1 (DIN EN 1991-1-4 + DIN EN 1991-1-4/NA) szerint méretezve.
DEHNcon-H HVI vezeték támasztócsőben, speciális
belső végelzáróval és felfogórúddal Ø22/16/10 mm, hossza 2500 mm
Tartócső anyaga: Üvegszál erősítésű műanyag (GRP) / Al
Tartócső hossza: 1955 mm
Vezeték színe: fekete ●
Vezető anyaga: Cu
Ekvivalens elválasztási távolság s (levegőben): ≤ 75 cm
Minimálisan rendelhető hossz: 6 m
Max. széllökés sebesség: 140 km/h
Szabványhivatkozás: DIN IEC/TS 62561-8 (VDE V 0185-561-8)

Gyártó: DEHN
Típus: HVI 20 M L6M SR1955 FS2500 DSH GFK AL
Cikksz.: 819247
vagy egyenértékű.

Tanúsítványok

 

Műszaki adatok

Tartócső anyaga Üvegszál erősítésű műanyag (GRP) / Al
Tartócső hossza 1955 mm
Felfogórúd hossza 2500 mm
Átmérő Ø külső GFK 50 mm
Átmérő Ø vezeték 20 mm
Vezeték színe fekete ●
Vezető anyaga Cu
Ekvivalens elválasztási távolság s (levegőben) ≤ 75 cm
Minimálisan rendelhető hossz 6 m
Max. széllökés sebesség 140 km/h
Szabványhivatkozás DIN IEC/TS 62561-8 (VDE V 0185-561-8)

A 819247 termék hozzá lett adva a jegyzettömbhöz.

A 819247 terméket hozzáadtuk a kosárhoz.

Webshop indítása

back to top